安詩曼工業除濕機廠家
微信:133-6050-3273
手機:133-6050-3273
郵箱:
地址:廣東深圳坪山區青松西路8號鴻合科技園

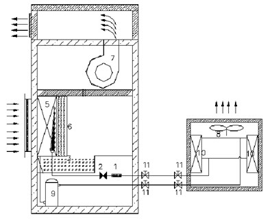
安詩曼轉輪除濕機,號稱“專業服務于各類對濕度要求高的工業生產領域”!那么請問:安詩曼轉輪除濕機是“何方神圣”?它憑什么能在有特殊濕度要求的工業環境“勝任”除濕這一艱巨任務呢?我們今天來具體認識一下“安詩曼轉輪除濕機”,看看它的實力究竟是不是名副其實?何為轉輪除濕機?它與常見的除濕機有何不同
了解詳情
除濕機除濕和空調除濕在原理、功能和效果上都有區別。原理上,除濕機除濕是對熱濕空氣進行冷凝處理,空調除濕則是通過蒸發器蒸發空氣水分;功能上,除濕機僅能除濕,空調還能提供其他功能;效果上,除濕機除濕效果比空調除濕更明顯。以下是具體區
了解詳情
先對于除濕機的工作原理解析:除濕機有兩種工作方式-通過冷凝(冷卻空氣以使用與冰箱類似的技術去除水分)或通過吸收/吸附(其中水分被吸收到干燥材料中或吸附到干燥材料上然后去除)。冷凝式除濕機工作原理1、潮濕的室內空氣通過機器一側的格柵吸入。2、一個電動風機將空氣往機器內部傳送。3、暖空氣通過冷卻劑循環的...
了解詳情
除濕機工業原理1.除濕機的內循環:通過壓縮機的運行→排氣口排出高溫高壓的氣體→進入冷凝器冷卻?→變成低溫高壓氣體→通過毛細管截流→變成低溫低壓的液體→通?過蒸發器蒸發吸熱→回到壓縮機變成低溫低壓的氣體。如此循環往復。2.除濕機的外循環:在正常
了解詳情
恒溫恒濕機作為環境試驗設備行業的主打產品之一,電子電工、材料,航空、汽車、家電、科研、學校等越來越多的行業、企業需要使用這類檢測設備。近年來,隨著市場需求,恒溫恒濕機也越來越多,雖然不排除一些以利益為先的小家庭作坊,但行業整體局式呈現著積A向上的發展,為了保證產品質量:越來越多的廠家采用進口零部件,...
了解詳情
1、在移動或搬運除濕機時,機器傾斜度請勿超過45℃.除濕機經過搬動最好事先靜放二至三小時,再開機使用,因除濕機中的壓縮機管線中含有冷煤,經過搬動后,冷煤必須經過二至三小時的時間回歸原位。2、擺放除濕機時,應保持四周有一定的空間,以確保機器運轉時出、入風道暢通和除濕效果。使用連續排水,要正確處理排水外
了解詳情
轉輪除濕機,它是除濕機的一種類型,根據這一點,下面是開展該商品的學習工作,主要是來論述和解讀其有關知識,那樣,能夠讓大家從這當中有一些獲得。1.轉輪除濕機的漏點是不是要高度重視并認真完成?其標值是不是要適合?除濕機的漏點,可以說是除濕機關鍵參數之一,是需要認真完成的,不可以忽視和粗心大意看待,由于這...
了解詳情
濕度作為空氣主要參數之一,與人們的生活、生產息息相關,人生活在50~60%的濕度環境中覺得舒適,否則會覺得干燥或濕悶。在紡織行業濕度低于40%則易斷紗;煙草行業濕度高于70%則易霉變,而當濕度低于30%極易產生靜電對電子行業極為不利。在現代化的工業
了解詳情
除濕機企業如何根據市場突破產能:產能是什么?在小的概念上來說就是生產能力,往大的方面說呢,就是企業參與生產的全部固定資產,在既定的組織技術條件下,所能生產的產品數量,或者能夠處理的原材料數量。今年突變的天氣給除濕機企業帶來很大的市場,有好多年除濕機市場沒有像今年這么興盛了,特別是工業除濕機,梅雨季節...
了解詳情
從普洱茶的品質論來看,決定茶品的主要有三,一是原料,二是工藝,三是倉儲,這三者缺一不可,而倉儲環節是決定后期茶品的價值。當然,有許多茶友經常遇到這種情況,特別是在南方地區,茶品存儲不當,結果受潮了;遇到這種麻煩的茶友,真不少哈!那
了解詳情
低價除濕機可以有,但要保證產品質量新聞資訊:近年來,國內各行各業的市場競爭日趨激烈;對于除濕機行業來說,也是如此;為此,除濕機企業的營銷手法可謂是八仙過海,各顯神通!但無論使用何種營銷手法,無非是為了能夠最大程度的吸引顧客,而顧客在選購除濕機時最為注意的一個方面就是價格;因此,一些除濕機企業為了吸引...
了解詳情
現在,就讓我們一起來了解如何在回南天防潮。做好室內防潮除濕老中醫認為,要防止“水南天”對人體的傷害,首先要做好居住環境的防潮除濕。1.緊閉門窗。要防止室外的濕潤空氣進入室內。不要開窗,即便是中午有陽光的時候也不能開,因為此時
了解詳情
計算機機房對溫度、濕度及潔凈度均有較嚴格的要求。因此,在計算機房的環境空調設計上與傳統的舒適性空調設計有著很大的區別。一、機房專用空調與舒適性空調的區別1、傳統的舒適性空調主要針對人員進行設計,其送風量小、送風焓差大,降溫和除溫同時進行,而機房內顯熱量占全部熱量90%以上的發熱體產生的余溫量很小。因...
了解詳情
調溫型除濕機適合高溫環境中使用,在一些溫度變化比較大,溫度比較高的場合下,使用調溫型除濕機的話,對于降低環境內溫度和濕度會有比較顯著和良好的效果,給我們的生產和工作帶來的極大的方便。調溫型除濕機的濕裝置由除濕蛋和承座組成。所謂除
了解詳情
近年來,受益于國家宏觀經濟的持續快速發展和人民生活水平的日益提高,食品工業依然保持了較快發展,行業整體水平也有了較大提高。作為提供食品工業裝備的行業,食品機械和包裝機械業將提供多品種、高質量的產品以滿足食品工業發展的需求。食品包裝機械制造業是為食品工業提供技術裝備的重要產業,近年來,隨著勞動力以及能...
了解詳情
新風除濕機系統軟件是啥?新風除濕系統軟件便是把別墅室內污穢的空氣立即排到戶外,使一個密閉式的室內空間完成合理的空氣換置,另外將戶外的新鮮空氣(即新風)引進房間內的一種身心健康、環保機械設備通風換氣機器設備。新風除濕系統軟件歷經每日二十四小時為房間內出示新鮮的歷經除菌、除灰、過慮的空氣,讓居民在房間內...
了解詳情
隨著技術的不斷發展,除濕機的種類越來越豐富,為了迎合一些環境要求,升溫型除濕機就此面世,它不僅可以降低室內的濕度,還能夠調節溫度,讓室內保持舒適且干燥的環境。A、溫濕度顯示:機器帶有濕度、溫度顯示功能,顯示當前環境溫濕度狀況。B、開關鍵:機器使用薄膜式開關,第一次按鍵為開機,再次按鍵為關機。C、溫度...
了解詳情
在許多重要的工作中信息處理是不可或缺的一個環節,因此,公司的正常運轉離不開恒溫恒濕的數據機房。IT硬件產生不尋常的集中熱負荷,同時對溫度或濕度的變化又非常敏感。溫度或濕度的波動可能會產生一些問題。常見的舒適型空調的設計并非為了處理數據機房的熱負荷集中和熱負荷組成,也不是為了向這些應用提供所需的精確的...
了解詳情
除濕機多少錢一臺?除濕機價格差異解析【新聞導讀】安詩曼每天都會接到全國各地不少客戶打來電話咨詢除濕機的價格,大多數都對除濕機的質量和性能不太了解,往往最關注的是價格。很多客戶打來電話,第一句問的就是:除濕機多少錢一臺?對于這個問題,每每此時我們都很難作出回答。如果能帶上型號,或把你的現場的實際情況和...
了解詳情
除濕機如何清洗和消毒5個秘訣讓除濕機壽命更持久一、除濕機保養濕度秘法除濕機運行要留意細心調節濕度,避免過熱或過冷。如暖氣時低2℃,則可省電10%左右。除濕機運行時盡量少開門窗。頻繁地開閉門窗會使除濕機的制冷除濕效
了解詳情